TP1 - 21/05 mayo 20, 2018 Compartir Obtener vínculo Facebook X Pinterest Correo electrónico Otras apps Compartir Obtener vínculo Facebook X Pinterest Correo electrónico Otras apps Comentarios
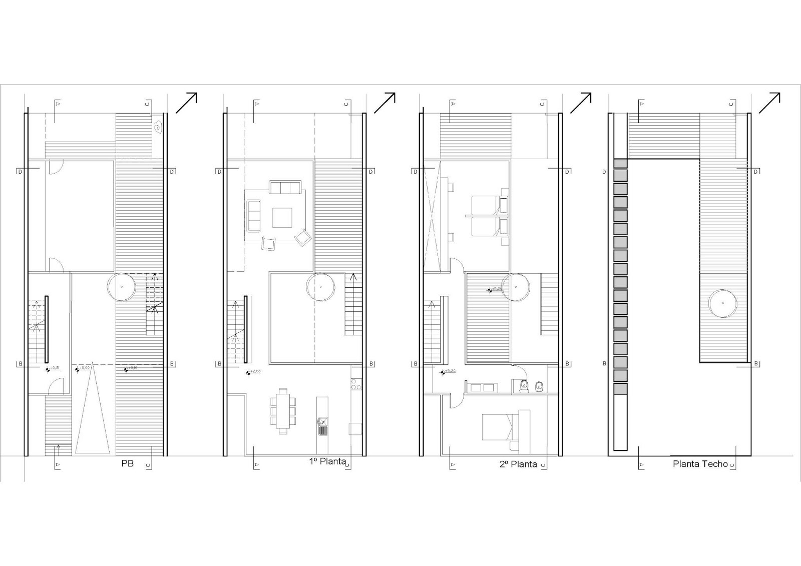
TP3 - 13/11 SEIJO CUTRERA noviembre 13, 2018 Plantas: Maqueta: Correccion del taller (Chufi): Leer más
Comentarios
Publicar un comentario